image description
An image from the town's Geographic Information System map shows the lot owned by the town's Affordable Housing Trust (outlined in yellow) where Northern Berkshire Habitat for Humanity hopes to build five homes.
image description
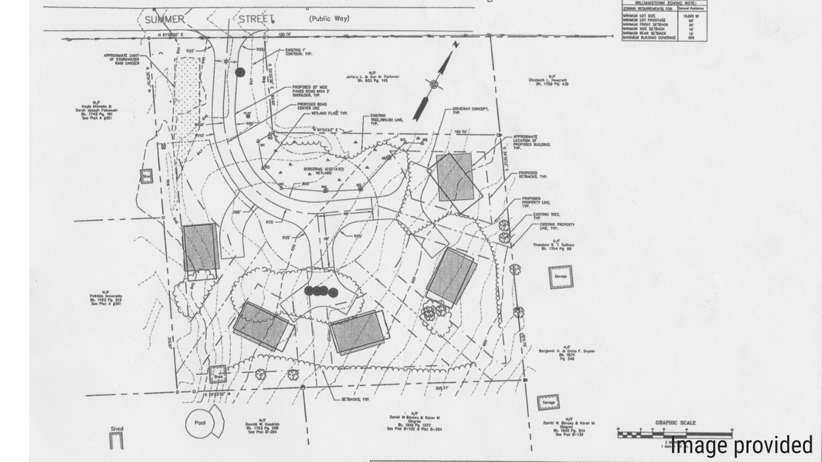
A preliminary site plan that Northern Berkshire Habitat for Humanity shared with attendees at Wednesday's forum.

Williamstown Residents Concerned over Impact of Habitat Development

By Stephen DravisiBerkshires Staff
Print Story | Email Story

Homeowners Kayla and Derek Falkowski ask questions at a Habitat information session at the Harper Center.
WILLIAMSTOWN, Mass. — Drainage was the chief concern of the residents who turned out for Wednesday's informational meeting about a planned five-home development off Summer Street.
 
Northern Berkshire Habitat for Humanity President Keith Davis led an hourlong meeting at the Harper Center, the first of two such Wednesday evening sessions before the non-profit gives a preliminary presentation to the Planning Board scheduled for April 9.
 
The Planning Board later this spring will be asked to approve a subdivision to allow the parcel, currently owned by the town's Affordable Housing Trust, to be broken up into five building lots of about a quarter-acre apiece with a short road off Summer Street to serve them.
 
On Wednesday, Davis deferred until April 9 specific answers about how the planned project will manage stormwater — one of the elements subject to review by the Planning Board. He told the audience of about 10 residents that Northern Berkshire Habitat's civil engineer, Charlie LaBatt of Guntlow and Associates, will have details at the April 9 session at town hall.
 
The group had some other questions for Davis, such as how long the project will take (about five years, one per house, once the road is installed), when construction will take place (volunteer builders will be on site from 8 a.m. to noon, Wednesday, Friday and Saturday) and whether street lights are planned (they're not).
 
And at least resident, Kayla Falkowski, who owns a home at the intersection of Summer Street and North Hoosac, expressed concern that their corner lot will be turned into a peninsula with roads on three sides.
 
But the main worry was water.
 
"Once you clear that [land], it's going to be a running river through my yard," said Falkowski, whose home also is downhill from the development.
 
Davis sought to assure the neighbors that the project will be engineered such that the increased impervious surface from the road and homes will not increase overland flow of water. At one point, he said that the stormwater features of the project could alleviate existing runoff from the site.
 
"The idea is to detain the water," Davis said, indicating a rain garden on the northwest corner of the site, near Summer Street. "Some of the water will go into the storm system and out to the Hoosic River. Some will be recharged into the ground. None will be on the surface.
 
Several times during the meeting, Davis told the audience, "We have to handle the water," but he explained that he is not the project's engineer and asked the residents to have patience and wait for the full presentation from LaBatt in two weeks.
 
Davis did mention at one point that the project could be cut back to four homes if the final stormwater plan calls for another detention site that would take away a building lot.
 
Residents at the information session also asked whether and how the new five-home development would be screened from existing residences.
 
"It's just OK to clear cut everything and do no landscaping?" Falkowski asked at one point. "That doesn't seem environmentally friendly."
 
Henry Sayers, who accompanied Falkowski and her husband, Derek, to the session, told Davis that the Habitat for Humanity should be a "good neighbor" and plant screening to mitigate the impact on surrounding homes.
 
Davis told the audience that screening is not a requirement of the town's subdivision bylaw, and, while the non-profit is not against the concept of screening, it likely would not be in the budget.
 
At one point, Davis suggested that Sayers could donate to Northern Berkshire Habitat for Humanity to make the screening possible.
 
Davis spent some time explaining both the town's need for affordable housing and the Habitat for Humanity model for creating homes, as it recently did at the corner of Cole Avenue and Maple Street on another lot donated by the town's Affordable Housing Trust.
 
To explain the town's need, Davis referred residents to the Planning Board's recently completed comprehensive plan and its existing conditions report, which found, among other things, that 27 percent of the town's households are "cost burdened," when it comes to housing, meaning that they spend more than 30 percent of their annual income on housing costs.
 
The report itself advocates for infill development, the type of development on underutilized parcels that NBHFH hopes to achieve.
 
The non-profit Davis leads, a chapter of the national Habitat for Humanity International, builds homes at a loss, relying on volunteer labor to do most of the work, including the initial owners of the homes, who are required to provide 250 hours of "sweat equity" before moving in.
 
Northern Berkshire Habitat relies on donations to make ends meet, Davis said. The last home it built, on Maple Street, lost the agency $70,000 — by design.
 
"A regular developer will build a home for $200,000 and sell it to you for $400,000," Davis said. "We build a home for $200,000 and sell it to you for $130,000.
 
"Would you sell your home to me for $130,000?" he asked rhetorically.
 
"I might have to if my basement is filled with water," answered Falkowski, drawing chuckles from the residents in attendance.
 
The next Northern Berkshire Habitat for Humanity information session is Wednesday, April 3, at the Harper Center at 7 p.m.

Tags: affordable housing,   habitat for humanity,   

If you would like to contribute information on this article, contact us at info@iberkshires.com.

Williamstown Residents Question Plan to Use Herbicide Near Green River

By Stephen DravisiBerkshires Staff
WILLIAMSTOWN, Mass. — Residents are asking the Conservation Commission to reconsider a 2023 decision that allowed the use of an herbicide that studies have linked to cancer, while its unclear if the group with permission to treat a parcel near the Green River will follow through on the plan.
 
At issue is a 4.3-acre riverfront parcel owned by the Williamstown Rural Lands Foundation off Woodlawn Drive near the site of the town's new fire station.
 
In late 2023, Con Comm OK'd a management plan for the area that included, "a combination of forestry mowing, cut/paint and foliar spray herbicide application," to address the out-of-control growth of invasive exotic plants on the site.
 
But WRLF never recorded the commission's order of conditions with the Registry of Deeds, a step it would need to complete in order to implement the plan. The town's conservation agent told the commission at its March 12 meeting that because of budgetary concerns, Rural Lands had not embarked on the planned ecological restoration, but it might want to revive that plan.
 
The commission's order of conditions expires three years after it was issued in December 2023.
 
"There was a seasonal plan in that [2023] application of cutting at a certain time of year … and then herbicide application in certain times of year to line up with the seasonality of certain plant and animal communities," Community Development Director Andrew Groff told the Con Comm. "They'll have to amend some of that schedule moving forward.
 
"I think we'll see [Williamstown Rural Lands Foundation's Dan Gura] and his contractor in the spring for an amendment to that schedule later in the spring, maybe early summer, and, likely, an extension."
 
View Full Story

More Williamstown Stories