image description
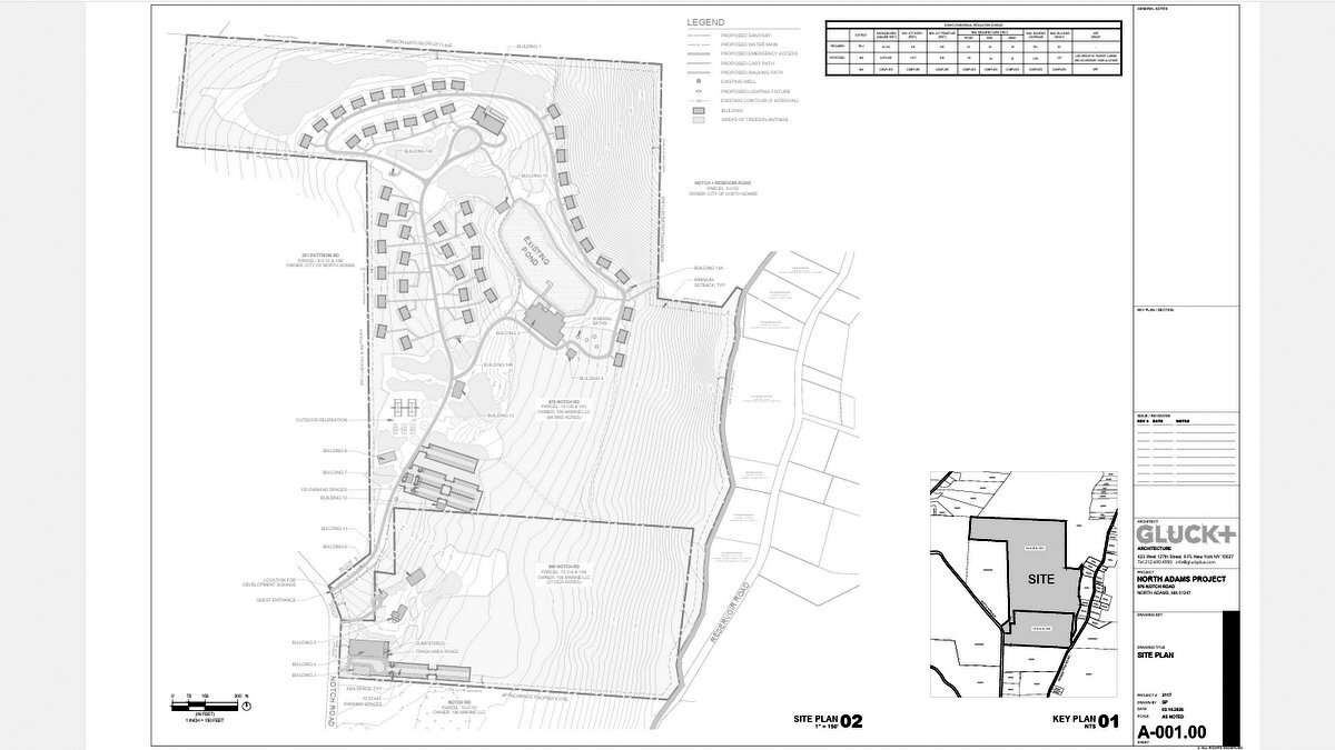
An illustration from 196 Marine LLC's application for a luxury resort on Notch Road in North Adams.
image description
image description
image description

North Adams Glamping Project Teams With Luxury Resort for New Approvals

By Tammy Daniels iBerkshires Staff
Print Story | Email Story
NORTH ADAMS, Mass. — Just last fall, wellness and fancy tents were the core of the glamping proposal for Notch Road.
 
On Monday, developer Benjamin Crespi of 196 Marine LLC, was back before the Planning Board with a dramatically different proposal: 49 two-bedroom tourists cabins with a restaurant and recreational amenities.
 
He was approved with a lengthy list of conditions hammered out between the project and a group of residents represented by attorney Alexandra Glover of Lazan Glover & Puciloski.
 
"After I think multiple rounds and many discussions with neighbors to understand what their reservations about the project were, we went back to the drawing board," said Crespi. "The main critical issues were the fact that my last permit allowed me to be open to the general public.
 
"There was concerns about the number of events and the size of those events. There was concern about noise impact in the neighborhood, traffic volume, traffic routing and wildlife interaction."
 
He detailed the 19 issues that the neighbors had and determined the way forward was to limit access only to paying customers and not open to the public for events.
 
"It was very clear that I had to reduce the volume of people on site. So if I reduce my guest count, and I've lost those profit centers, then I need to offset by going to a higher level of service. That's exactly what I've done," Crespi said.
 
The project's had a couple iterations since first appearing before the Planning Board back in 2019. It's original developers posed seasonal tents on platforms and a cafeteria in what was a residential home on the property. Planners had nixed the idea of tiny homes and Airstreams.
 
Crespi was approved last October for year-round camping in 49 high-end tents, with a lounge and sauna in the former family home to focus more on wellness.  
 
This time, he said the cabins, along with significant modifications to existing buildings, will support a wellness and recreation enterprise. This "regenerative tourism" will be achieved by partnering with Nayara Resorts, a luxury hotel brand that prides itself on its sustainability and eco-tourism efforts.
 
These include converting the single-family home into a 15,000 square-foot lobby and restaurant and adding a 2,000 square foot restaurant onto the farmhouse on the site.
 
"These supporting facilities, such as the restaurants and wellness center, are for guests only and will not be open to the public," according to documentation accompanying the permit application.
 
"The development is also considering an event space tent on the site that will host up to 150 additional non-guest attendees and will be seasonal. We anticipate around 20 events to be held in the space annually, where guests already lodging at the site book a larger space for other guests and non-guest attendees."
 
The buildings will be done in contemporary black-stained wood, black metal roofs, glass and bronze metal flashing, with the exception of the farmhouse, and with green roofs were appropriate to reduce the visual impact. Some of the work will by done by B&B Micro Manufacturing of Adams. 
 
The application states that a landscape architect will design a phased management plan to recreate a semi-forested condition with the reintroduction of native trees and plants.
 
"Material selections, lighting strategies, and landscape design will emphasize natural textures, dark-sky sensitivity, and a restrained visual presence, minimizing both ecological and aesthetic impacts," according to the application, with the goal of obtaining DarkSky certification
 
Crespi noted that the plans would limit parking to the parking lot with access to the cabins by bike or golf cart and that it will only touch 4 or 5 percent of the property's 145 acres, far less than the 20 percent allowed. The amenities on site are expected to reduce traffic in and out Notch Road.
 
"We're estimating 50-plus construction jobs and a multi-year project," he said. "Our opening budgets, currently assume 75 full-time positions."
 
The project is partnering with Nayara Resorts, an international luxury brand that prides itself on sustainability and ecological management. 
 
Leo Ghitis, CEO and co-founder of Nayara, offered examples of environmental work done on behalf of its resorts and the areas they are located, such as rebuilding coral reefs, reducing waste and restoring natural habitats. 
 
"Every one of our resorts is carbon neutral. We as a brand, are considered the global leaders, the leaders in the world in sustainability and social responsibility," he said. "We do things that no other brand that I know does, for example, in terms of social responsibility for us, it is a real mission to make sure that the success of our properties also translates improving the standard of living and the quality of life of the communities where we operate."
 
Glover listed issues that her clients had with the resort, including the configuration of the cabins that would allow for 98 double-occupancies, the lack of an environmental report and landscaping plan, and questions surrounding water and sewer.
 
"There was a discussion about agreed conditions, and my clients put together a list which I will give to this board. There was a response to it, and many were adopted," she said. "They do not want to stop this development. They don't. They only want the ordinance to be complied with so everyone has the information and understands the impact. 
 
The project will use a septic line, installed but currently capped, to the city's waste management system; the water system is still under discussion. The project's civil engineer said the stormwater management system will be developed as the project's design progresses and will be in compliance.
 
Conservation Commissioner Heather Williams, who was in the audience, said her board had not received anything on this proposal yet and noted the property abuts public land and drains directly into Notch Brook and Cascades. 
 
"I'm concerned a little bit, both on the question of permitting from the Conservation Commission and on the question of what will be done to protect public lands around the Cascades, which is also a safety issue, because that area is steep," she said. 
 
Planning Chair Brian Miksic said the project has to go to Con Comm and Crespi pointed out that some 40 acres clear cut by the previous owner has been allowed to regrow and reduce runoff. He said clients will be apprised of conditions and that some type of fencing could be installed to block the area and encourage access through the trail head. 
 
Planner Virginia Riehl said she appreciated being able to walk the site with Crespi but asked if Building Inspector William Meranti could speak to the more technical side because not all of it was clear. Meranti said the developer has been meeting individually with city departments about sewer, water and fire protection.
 
"We are now gathering as a group to go over applications like this, and out of that came the letter that you've all received," he said. "I think Mr. Crespi already addressed the vast majority of them, although I think that to Virginia's point, it will have to be a list of conditions, because there are still unknowns."
 
Planners Kyle Hanlon and Lisa Blackmer said they supported the project, with Hanlon adding he appreciated the attempts to alleviate neighbors' concerns. Blackmer said she understood their objections but was disappointed that it meant the resort's services wouldn't be open to residents. 
 
Ghitis said they could have special rates for residents, but the resort would be not be open for day trips. 
 
Among the conditions were: appropriate city signoffs, including the fire chief and Con Comm; guest count lower than 50; limited events ending at 10 outside and 11 inside; a study on the lot lines prior to construction; no audible music at the lot lines; and limiting the number of events. 
 
Josh Field, a contractor who lives about 700 feet from the project on Reservoir Road, said all those development issues "get sorted out by talented people."
 
"Quite simply, it checks off all my boxes as a resident of North Adams and as a neighbor," he said, adding he wanted people to come here, and he wanted the city to get a windfall. "I would solicit my city to try to put on our best face for these guys. Thank you for choosing us and try to do something great."
 
In other business, the board approved Joshua Hall of Both/And Productions Corp. for a podcasting and digital media studio at 37 Main St., Suite 208-210, above the former Berkshire Bank. 
 
The Green Room will be a private club for members' use for workshops, podcasting and four to six small events a month, both members and ticketed public events. It will offer free space for local nonprofits. Maximum capacity is 30 people. 

Tags: glamping,   Planning Board,   resort,   

If you would like to contribute information on this article, contact us at info@iberkshires.com.

North Adams Council OKs Funds for Ashland Street Project Easements

By Tammy Daniels iBerkshires Staff
NORTH ADAMS, Mass. — The City Council on Tuesday approved an appropriation of $256,635 from the Land Sales Account for easements and takings related to the Ashland Street project.
 
A second roll call vote approved the easements and takings during a meeting lasting nearly three hours.
 
"This is a construction project that has been in the works for probably, like eight years, coming down the pipe in conjunction with MassDOT," said Mayor Jennifer Macksey. "And what we are asking tonight is permission for appropriation for us to pay for some permanent and some temporary easements to complete this work."
 
The mayor noted the use of "eminent domain" in the legal language but assured the council and audience that no one's home or driveway were being taken.
 
The temporary construction easements will terminate after six years; the permanent roadway easements will give the city rights to access those areas for purposes of repair or public construction. 
 
The takings are the city's contribution to the $11.4 million Complete Streets project, being funded by the state Department of Transportation through the 2026 Transportation Improvement Program. The account has $463,000, leaving a balance of $207,000 after the appropriation.
 
Macksey said this is similar to what was done for the Brayton School safe routes project but the appraisals were much higher.
 
View Full Story

More North Adams Stories