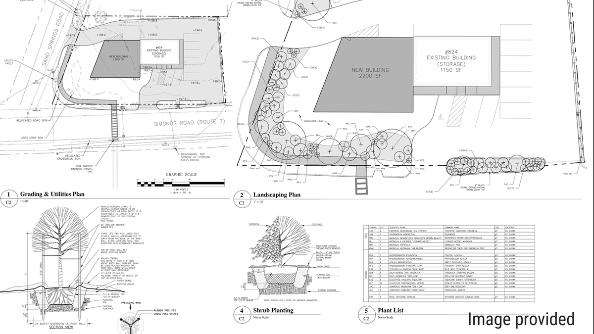
The former Express Mart at the corner of Simonds Road (Route 7) and Sand Springs Road in Williamstown has sat vacant for years.Part of the development plan submitted to the Planning Board. The dark gray box is the addition that will house the offices of Jack Miller Contractors.
WILLIAMSTOWN, Mass. — Jack Miller Contractors has received the town's approval to renovate and expand the abandoned gas station and convenience store property at the corner of Sand Springs Road and Simonds Road (Route 7) to serve as its new headquarters.
Last Tuesday, the Planning Board voted, 5-0, to approve a development plan for 824 Simonds Road that will incorporate the existing 1,300-square-foot building and add an approximately 2,100-square-foot addition.
"We look forward to turning what is now an eyesore into a beautiful property and hope it will be a great asset to the neighborhood and to Williamstown," Miller said on Friday.
Charlie LaBatt of Guntlow and Associates told the Planning Board that the new addition will be office space while the existing structure will be converted to storage for the contractor.
The former gas station, most recently an Express Mart, was built in 1954 and, as of Friday morning, was listed with an asking price of $300,000 by G. Fuls Real Estate on 0.39 acres of land in the town's Planned Business zoning district.
"The proposed project is to renovate the existing structure and create a new addition of office space," LaBatt told the planners. "So it's both office and, as I've described in the [application], we have a couple of them in town: a storage/shop type space, more industrial as opposed to traditional storage."
He explained that while some developments can be reviewed by Town Hall staff for compliance with the bylaw, there are three potential triggers that send that development plan to the Planning Board: an addition or new building 2,500 square feet or more, the disturbance of 20,000 square feet of vegetation or the creation or alteration of 10 or more parking spots.
Only the third trigger, the 10 spaces proposed for the Simonds Road site, put the project on the Planning Board's agenda.
He added that the project also would not require a review of its stormwater management plan.
"This thing is all at grade," he said. "We're not disturbing 10,000 square feet of vegetation [the trigger for stormwater management review], because there's not 10,000 square of vegetation on the lot."
In fact, while the redevelopment calls for a building addition and the creation of those 10 parking spots, it actually reduces the amount of impervious area on the lot by about 2,700 square feet, LaBatt said.
The members of the Planning Board asked for a few clarifications on aspects of the plan, including how it will incorporate both vegetative screening and fences to comply with the bylaw and whether the proposed exterior lighting will spill over onto adjoining properties or the state highway.
The panel spent some time looking at the distance between the proposed project's curb cuts on Simonds Road, ultimately agreeing that the spacing was appropriate under the bylaw. LaBatt noted that the Massachusetts Department of Transportation also must OK those cuts, and early indications are the state agency will be amenable.
Before giving their signoff, members of the Planning Board took time to praise the proposed redevelopment of the blighted property.
"It's a great adaptive reuse of an existing building that's an eyesore now," Roger Lawrence said. "It's going to greatly beautify that intersection. You're reducing the amount of impervious surface, you're including green shielding, so you're checking off a lot of good boxes here that reflect our community values."
Also on Tuesday, the Planning Board approved a request from the town to subdivide a South Williamstown property owned by the Hart family.
A portion of the 8.25-acre parcel on New Ashford Road (Route 7) was used as a town landfill in the 20th century, and the town is seeking to acquire part of the lot in order to maintain the degraded portion.
"It's our responsibility to stabilize and maintain [the landfill site] long term," Community Development Director Andrew Groff told the board. "So we are transferring property from the Hart family. They're going to maintain the home that's on New Ashford Road. The town is going to maintain the landfill on the back lot. So it is a building lot, but nothing will ever be built there."
Public Works Director Craig Clough told the board about how the town plans to maintain the former landfill in order to protect the Green River, which runs behind the property.
"Because this landfill is up against a river bank, we do have to stabilize the bank, because we do have some of the old trash that gets into the river," Clough said. "What it's going to be in the future is a lot of bioengineering, probably a lot of tree cribbing and stuff like that to actually build up the bank that is on the west side of the river. We'll stabilize all that so we no longer have the intrusion of rubbish into the river."
The Planning Board's 5-0 approval of the subdivision is one step in the town's process to acquire a portion of the property. Ultimately, the acquisition will require the approval of town meeting.
If you would like to contribute information on this article, contact us at info@iberkshires.com.
Your Comments
iBerkshires.com welcomes critical, respectful dialogue. Name-calling, personal attacks, libel, slander or foul language is not allowed. All comments are reviewed before posting and will be deleted or edited as necessary.
No Comments
Puppets Teach Resilience at Lanesborough Elementary School
By Breanna SteeleiBerkshires Staff
The kids learned from puppets Ollie and a hermit crab.
LANESBOROUGH, Mass. — Vermont Family Network's Puppets in Education visited the elementary school recently to teach kids about being resilient.
Puppets in Education has been engaging with young students with interactive puppets for 45 years.
Classes filtered through the music class Thursday to learn about how to be resilient and kind, deal with change and anxiety, and more.
"This program is this beautiful blending of other programs we have, which is our anxiety program, our bullying prevention and friendship program, but is teaching children the power of yet and how to be able to feel empowered and strong when times are challenging and tough," said program manager Sarah Vogelsang-Card.
The kids got to engage with a "bounce back" song, move around, and listen to a hermit crab deal with the change of needing a new shell.
"A crab that is too small or too big for its shell, so trying to problem solve, having a plan A, B and C, because it's a really tough time," Vogelsang-Card said. "It's like moving, it's like divorce of parents, it's changing schools. It's things that children would be going through, even on a day to day basis, that are just things they need to be resilient, that they feel strong and they feel empowered to be able to make these choices for themselves."
The resiliency program is new and formatted little differently to each of the age groups.
"For the older kids. We age it up a bit, so we talk about harassment and bullying and even setting the scene with the beach is a little bit different kind of language, something that they feel like they can buy into," she said. "For the younger kids, it's a little bit more playful, and we don't touch about harassment. We just talk about making friends and being kind. So that's where we're learning as we're growing this program, is to find the different kinds of messaging that's appropriate for each development level."
This programming affirms themes that are already being discussed in the elementary school, said school psychologist Christy Viall. She thinks this is a fun way for the children to continue learning.
"We have programs here at the school called community building, and that's really good. So they go through all of these strategies already," she said. "But having that repetition is really important, and finding it in a different way, like the puppets coming in and sharing it with them is a fun way that they can really connect to, I think, and it might, get in a little more deeply for them.
Vogelsang-Card said its another space for them to be safe and discuss what's going on in their life. Some children are afraid because maybe their parents are getting divorced, or they're being bullied, but with the puppets, they might open up and disclose what's bothering them because they feel safe, even in a larger crowd.
"When we do sexual abuse awareness that program alone, over five years, we had 87 disclosures of abuse that were followed up and reported," she said. "And children feel safe with the puppets. It makes them feel valued, heard, and we hope that in our short time that we're together, that they at least leave knowing that they're not alone."
Bedard Brothers also gave the school five new puppets to use. Viall said the puppets are a great help for the students in her classroom, especially in the younger grades.
"Every year, I've been giving the puppets to the students. And I also have a few of the puppets in my classroom, and the students use them in small groups to practice out the strategies with each other, which is really helpful," she said. "Sometimes the older students, like sixth graders, will put on a puppet show. They'll come up with a whole theme and a whole little situation, and they'll act it out with the strategies for the younger students. It's really cute, they've done it with kindergarteners, and the kids really like it."
Vogelsang-Card said there are 130 schools in Vermont that are on the waiting list for them to come in. Lanesborough Elementary has been the only Massachusetts school they have visited, thanks to Bedard Brothers.
"These programs are so critical and life-changing for children in such a short amount of time, and we are the only program in the United States that does what we do, which is create this content in this enjoyable, fun, engaging way with oftentimes difficult subjects," she said. "Vermont is our home base, but we would love to be able to bring this to more schools, and we can't do this without the support of community, business funders or donors, and it really makes a difference for children."
The fourth-grade students were the first class to engage with the puppets and a lot of them really connected with the show.
"I learned to never give-up and if you have to move houses, be nervous, but it still helps," said William Larios.
"I learned to always add the word 'yet' at the end," said Sierra Kellogg, because even if she can't do something now, she will be able to at some point.
Samuel Casucci was struck by what one of the puppets talked about. "He said some people make fun of him if he dresses different, come from different place, brings home lunch, it doesn't matter," Samuel continued. "We're all kind of the same. We're all kind of different, like we have different hairstyles, different clothes. We're all the same because we're all human."
"I learned how to be more positive about myself and like, say, I can't do this yet, it's positive and helpful," said Liam Flaherty.
The students got to take home stickers at the end of the day with contact information of the organization.
Students got to showcase their art at the Clark Art Institute depicting their relationship with the Earth in the time of climate change. click for more
The 100th annual meeting will be held on March 10, 2027, the Community Chest's birthday (there will be cake, he promised) and a gala will be held at the Clark Art Institute on Sept. 25, 2027.
click for more