Artist rendering of an eco-friendly home at the new Green River Meadows development. The architect is Hicks Stone, a certified passive house consultant.
WILLIAMSTOWN, Mass. — Here's a chance to have a custom home built along the scenic Green River.
Our Friday Front Porch is a weekly feature spotlighting attractive homes for sale in Berkshire County. This week, we are discussing a to-be built "eco-friendly luxury" home on Water Street.
We spoke with Danielle Giulian, a real estate professional with William Pitt Sotheby's International Realty and the agent for the property.
Giulian said this house will be one of five sustainable homes that will be called Green River Meadows and all five will be zero-energy ready. Sotheby's currently has one other Green River Meadows property on the market. These homes will be more energy efficient and sustainable using passive housing principles.
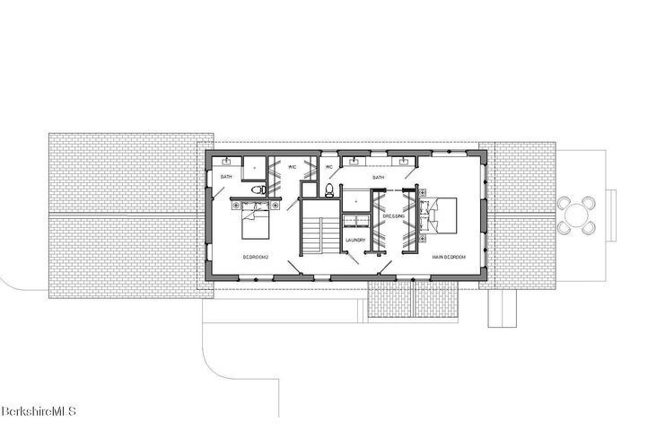
The home will be a three-bedroom, three-bath that once purchased has a five- to six-month turnaround to be built. It will feature a two-car garage, a deck customizable to the buyer, a washer and dryer, and a walk-in closet.
It is 2,015 square feet with 1.23 acres and close to Williamstown Elementary School, Mount Greylock Regional School, and Williams College. Its location along the Green River will showcase mountain and river views.
The asking price is $880,000.
This says it will be made with 'passive housing principles.' Can you tell me more about what that means?
Giulian: It's made with all modern construction, modern materials, and it's going for sort of that net zero, which is all about being green, being energy efficient, and the homes will be solar panel ready. So if someone wanted to truly go zero energy, they could add solar panels to the house. These are going to be energy efficient. They're going to be combustion free (not involving burning fuel), and all of the building materials that are going to be used are all going to be super insulated, high-performance energy utilities, things like that so people can live that sort of energy conscious lifestyle, you know, helping to minimize our carbon footprint.
What do you think makes this property stand out in the current market?
Giulian: Well, there certainly isn't anything else like it right now. If you look around the Berkshires, you don't really see a whole lot of development happening. You don't see a lot of new construction. We definitely need it here, but most of the new construction that you see are the people who are building their second, third, fourth homes, you know, these multimillion dollar properties, and they are more and more leaning toward making them in this sort of passive style with all those materials. And this is going to be a more modest option in a development, and most of the inventory, especially in the Williamstown area, are older homes that were built over 100 years ago and are unable to offer these same energy incentives.
What kind of lifestyle do you think this home would naturally lend itself to?
Giulian: We've definitely kind of explored a lot of who our buyer is. You know, being in Williamstown, we do have a lot of Williams College alumni, a lot of people who are tied into the college and a lot of people who are very educated and understand what's going on in the world and where things are going in terms of climate change and things like that. And we see our buyer as someone who definitely cares about all of those things and is looking for that sort of green lifestyle, but also modern, it's going to have very modern feels to it. And someone who's looking to just sort of to be in that Williamstown environment.
How would you describe the feel or atmosphere of this home?
Giulian: It's going to have a very minimalist feel, very neutral, neutral design, but like luxury finishes. So a lot of your typical developments, you see very sort of cookie-cutter, like Home Depot-quality finishes, where this property is actually going to be equipped with luxury finishes, and the buyers will have some say in what those finishes are. So there will be opportunities for the buyers to sit down and have meetings with the designers and the developers and sort of customize these properties to their liking to a certain extent.
What kind of buyer would this home be ideal for?
Giulian: The ideal buyer for this home is someone who's looking for zero-energy living who's sort of almost looking to go off the grid without being completely off the grid. You know, it will still be connected to town utilities like water and sewer and things like that. But there will not be any gas or oil or any fuel products like that. Everything will be electric. There'll be hookups for electric vehicles and things like that. So someone who's really energy conscious and looking for that type of lifestyle.
What would you say to a buyer trying to imagine their life here?
Giulian: Pretty much the same thing. I mean, definitely low operating and maintenance costs are definitely a big bonus of having a property like this. You know, long-term durability, resilience of the home. You know, a lot of the older properties around here because of their age, and the wear and tear that comes with that, and some of the materials that were used back then do require a lot more upkeep, and a home like this is going to be something that they could just move into and not have to worry about anything for years and years.
You can find out more about this house on the listing.
*Front Porch Feature brings you an exclusive to some of the houses listed on our real estate page every week. Here we take a bit of a deeper dive into a certain house for sale and ask questions so you don't have to.
Disclaimer: The information provided in this article is for general informational purposes only and does not constitute professional advice or an offer to sell. If you're interested in having your property featured, please contact our sales department at sales@boxcarmedia.com.
If you would like to contribute information on this article, contact us at info@iberkshires.com.
Your Comments
iBerkshires.com welcomes critical, respectful dialogue. Name-calling, personal attacks, libel, slander or foul language is not allowed. All comments are reviewed before posting and will be deleted or edited as necessary.
No Comments
School Budget, Environment, Recreation Highlight Williamstown Town Meeting
By Stephen DravisiBerkshires Staff
WILLIAMSTOWN, Mass. — This month's annual town meeting returns to a familiar venue.
What goes on in that building the rest of the year could be a major topic of discussion at the Tuesday, May 19, gathering.
After two years (2020 and '21) on Williams College's football field and four years ('22 through '25) at Mount Greylock Regional School, the town's legislative body will be back at Williamstown Elementary School for a 7 p.m. meeting to decide on municipal spending and other town business.
The largest segment of the municipal budget goes to the public schools, and the spending plan for PreK-12 education likely will see a floor amendment intended to add an additional $120,000 to fund a math interventionist at Williamstown Elementary School.
The elected seven-member School Committee that governs the Mount Greylock Regional School District has proposed a $30.9 million operating budget for the fiscal year that begins on July 1. The local share of that budget is meted out in assessments to the member towns of Lanesborough and Williamstown, which each vote whether to approve its assessment at town meeting.
Williamstown's share of the operating and capital expenditures for the regional school district is $16.8 million under the budget approved by the School Committee, an increase of a little more than $2 million, or 13.65 percent, from the budget for the current fiscal/school year.
A group of WES parents concerned about the mathematics instruction at the Grade prekindergarten-6 school plans to bring an amendment to town meeting to add the additional $120,000 — about 0.7 percent of the proposed assessment — to fund the interventionist position.
Mount Greylock Regional School seventh-grader Scarlett Foley Sunday beat two opponents from Division 2 Longmeadow to capture the Western Mass Tennis Individuals Championship. click for more