image description
William Shanahan of the Community Development Office holds an illustration of the Notre Dame renovation presented to the Planning Board.
image description
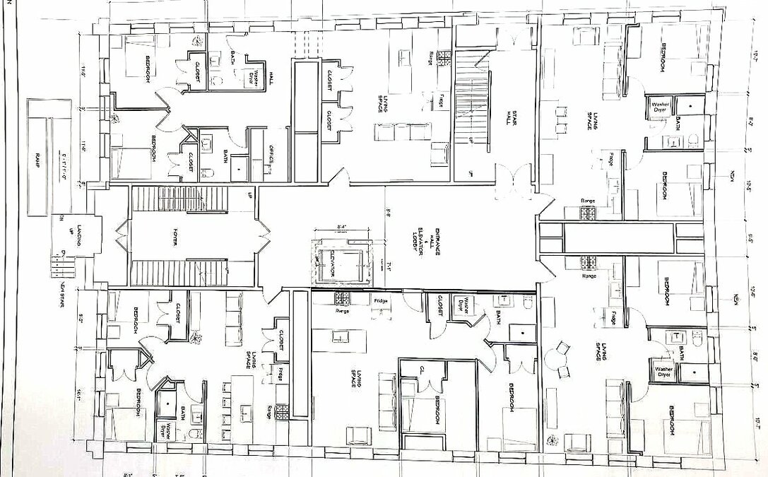
Schematics for units planned in the former Notre Dame School.
image description
Work began several months ago on the 1898 building to prepare it for construction.
image description
More than 4,500 square feet in the former Price Chopper building will be transformed into a 'vanilla' box for theater performances.

North Adams Planners OK Notre Dame Housing, Theater & Veterinary Move

By Tammy Daniels iBerkshires Staff
Print Story | Email Story

The Building Department was also asked about this collapsing home on Wesleyan. 
NORTH ADAMS, Mass. — Moresi & Associates is moving forward with housing in the former Notre Dame School and the Williamstown Theatre Festival is planning performances in North Adams. 
 
These two ventures and the relocation of North County Veterinary Hospital to Ashland Street were approved on Monday by the Planning Board. 
 
David Moresi purchased the former Notre Dame Church and School on East Main Street from the city in 2020 for $10,000 after financing for a hotel proposal fell through. 
 
Since then, the developer had turned his efforts to redeveloping the Wall-Streeter building into residential and office space and the former Johnson School into high-end apartments along with outside projects including North Adams Regional Hospital. 
 
"This is the third in our five-year project plan of some building redevelopments," Moresi told the board.  "We started back in 2020 with the Wall Streeter, and we brought 10 units of residences to North Adams. We went on to Johnson School, 15 units there, and with the Notre Dame School project, another 15 units."
 
The developer, who also renovated the Mulcare Building on Marshall Street and the Norad Mill on Roberts Drive, said he was excited to bring more market-rate housing to the downtown. 
 
"Phase one of this project, obviously, is going to be the school. And some point we'll be back before you, in a year, perhaps a year and a half, two years, for the church project," he said. "It's going to be a great little project, and we're really excited for it, and happy to answer any questions."
 
Notre Dame Church closed in 2005 and the school decades before, being briefly rented by the city for a few years in the 1970s to handle a burgeoning enrollment. The city bought it to save the steeple, one of the iconic landmarks of the "Steeple City" but several attempts at reuse efforts fell by the wayside. 
 
The three-story structure will hold 15 two-bedroom units with one or two bathrooms with open kitchens, granite counters, in-unit laundry and refinished hardwood flooring. The building will be fully accessible and care will be taken to make it energy efficient and the exterior in line with the historic nature of the neighborhood. 
 
In addition to modern technology and amenities, the "units will also retain some of the original school room fixtures including slate boards and trim details."
 
Moresi could not speak to the rental range at this point but expected it would be on par with two-bedroom units in his other North Adams buildings. 
 
"You've set the bar pretty high for all your projects and I appreciate that," said Planner Kyle Hanlon. 
 
Abatement work and construction preparations have already begun in the building, said Moresi, and materials have been pre-ordered in advance. "So we're ready to rock and roll," he said. 
 
The board also approved a "vanilla" box performance space in the former Rent-A-Center in the North Adams Gateway Center, the former Price Chopper. 
 
The Williamstown Theatre Festival Foundation purchased the vacant supermarket in 2020 as a production and storage space for the seasonal theater. The 60-year-old building had been occupied by Central Markets and its successor Price Chopper until the latter closed in 2016. 
 
According to the application, the 4,350 square foot space will be used for a range of indoor performances during the summer with the intent to "attract more locals and tourists" to the city. The theater sees the mainly weekend pop-ups as a way to also draw in day visitors from Massachusetts Museum of Contemporary Art.
 
Seating would be cabaret style with a maximum of 300 and the space will offer prepackaged food and apply for one-alcohol licenses for performances. 
 
Trailers will be used this summer for dressing rooms and restrooms; Phase 2 to completed by 2026 or later will shift those into the adjacent storage space. The only changes to the exterior will be signage. 
 
Moresi's company has managed the property and will continue do so. "I'm super excited for this, because I feel this is going to have a real good economic benefit to North Adams this summer," he said. "It's going to bring more people into North Adams, restaurants, retail, really supporting businesses and everything."
 
North County Veterinary Hospital, with Dr. Lindsay Cermak, has operated on Curran Highway since about 2008 but is looking to relocate to the former dentist's office at 176 Ashland St. The property owned by has been for sale for some time. 
 
"They have a great opportunity to acquire Dr. Blanchard's dental practice building on Ashland Street, and they're looking to move downtown," said their attorney, Jeffrey Grandchamp. "This is a permitted use in the zone with site plan approval. ... There are no changes planned for the exterior of the property. There'll be some improvements on the inside."
 
The clinic will be daytime during regular business hours, with no boarding or kennel services, and has plenty of parking, including a lot kitty corner across the street. 
 
In other business, Chair Brian Miksic said he thought it was time for the city to begin enforcement with Spot on Storage on Hodges Cross Road because the sign has been laying on the ground for months. Building Inspector William Meranti said he had spoken with the several times. 
 
Meranti also said he would be speaking with National Grid and the owners of the Hoosac Mill about demolition of the walls of the mill. The date for the demolition has "come and gone," he said. "That seems to be our last hurdle."
 
• Planner Rye Howard asked about a collapsing house on Wesleyan Street. "It took a big, big roof collapse during the last snow. So it's slowly sinking into the ground," they said. "I walk by it every day and it's funny to see the roof now, lying on the ground."
 
Meranti said he was aware of the problem "through many avenues," and that it was not really a Planning Board issue "but we're dealing with it."

Tags: Planning Board,   school reuse,   theater,   veterinarian,   WTF,   

If you would like to contribute information on this article, contact us at info@iberkshires.com.

North Adams Airport Commissioners Review Badge Policy

By Jack GuerinoiBerkshires Staff
NORTH ADAMS, Mass. — The Airport Commission will rethink its badge policy after a discussion with airport users who shared their grievances regarding the current system.
 
The commissioners voted last week to approve a new fee structure for the airport — minus badge fees — as they hope to continue their discussion and craft a policy that creates fewer barriers for airport users.
 
Three years ago, former manager Bruce Goff was charged with cleaning up the badge system. At the time, it was unknown how many badges were in circulation; some airport users had multiple badges, while others had moved away or passed away.
 
Badges are required to access the airside of the airport. Under the current rules, all new badges were set to expire in three years, leaving airport users currently scrambling to obtain new ones. This process comes with a $50 fee.
 
Airport user and former commissioner Trevor Gilman said the sticking point for him was not the price, but the automatic shutdown of the badges upon expiration, as well as the process by which users must obtain brand-new physical cards.
 
"Why change out a badge for the same person? They are perfectly good badges. It is not the cost, it is the process. All of a sudden my badge expired and I can't get in. It takes forever to get one from the state," Gilman said. "If you lose a badge, certainly you should have to buy a new one because there is a cost. That is not the problem; it is the process."
 
He said other airports do not have expiration dates on their badges, adding that he has held one from another airport for 10 years. Gilman argued there should be no barriers to users obtaining a badge, suggesting that higher badge adoption allows the city to better track airport activity.
 
View Full Story

More North Adams Stories