A revised site plan for a planned subdivision on Summer Street in Williamstown shows the exact locations for driveways, homes and sheds on the 1.75-acre parcel.
Williamstown Con Comm Reviews Revised Summer Street Proposal
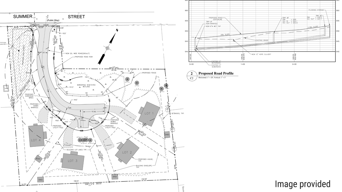
WILLIAMSTOWN, Mass. — The Conservation Commission on Thursday reviewed a refined version of the site plan for a planned four-home subdivision off Summer Street.
Earlier this year, Northern Berkshire Habitat for Humanity sought and received an order of conditions from the Con Comm to build four single-family homes on the parcel currently owned by the town's Affordable Housing Trust.
That order was appealed by abutters to the parcel to the Massachusetts Department of Environmental Protection, which last month received a revised set of plans from Northern Berkshire Habitat.
As part of its review process, the MassDEP Western Regional Office asked the Con Comm whether the new plans continue to be satisfactory to that body.
Essentially, the most recent set of plans specify exactly where on each home will be placed in the four building lots to be carved out of the 1.75-acre parcel. Prior iterations had more non-specific building envelopes marking where homes could be placed.
"Because this was appealed to the DEP, we decided we would site the houses, site the sheds, site the roads," Northern Berkshire Habitat President Keith Davis told the Con Comm. "The only difference [from the plans the Con Comm already approved] is we put rectangles in where the houses will be built."
Community Development Director Andrew Groff, who serves as the town's conservation agent, told the commission that, normally, such a refinement in the schematics for a project would be reviewed and approved internally by town hall staff.
But given that the project is under appeal and the state agency specifically asked whether the commission, "considers the proposed plan change substantial," the matter was back before the commissioners.
After a brief discussion, Lauren Stevens moved that the commission approved of MassDEP accepting and considering the revised plan, a motion that was OK'd on a 6-0 vote.
The Con Comm also unanimously agreed to send a revised draft of a proposed town policy on memorial gifts back to the Select Board for implementation.
The Select Board this summer took up the matter of establishing rules for accepting gifts like benches, trees and plaques on town property. Recognizing that a good deal of that property is on land under the care and control of the Con Comm, like Margaret Lindley Park, the Select Board consulted the commission on the proposed rules.
A sticking point for one member of the commission was language in the draft policy that limited those honored to individuals or families and excluded "organizations and groups." Philip McKnight told the Select Board at a meeting this summer that he thought organizations should be eligible and would recommend to the Con Comm that it not support a policy that said otherwise.
On Thursday, his fellow commissioners said they did not want to oppose the Select Board's draft based on that restriction.
"I don't feel strongly about it myself," Tim Carr said.
"Speech decisions shouldn't be under the purview of this board," Stevens noted. "That's more a job for our elected officials."
The commissioners did agree to add language to the policy that any proposal to install a memorial planting or bench on land under the Con Comm's jurisdiction needs its OK.
The suggested revision will be sent back to the Select Board for its approval.
The Con Comm, meanwhile, is hoping this fall to be able to approve the town's plan to stabilize the bank of the Hoosic River near the intersection of North Street and Syndicate Road.
• Groff told the body that the commonwealth's Natural Heritage and Endangered Species Program had ordered a full botanical survey for the proposed work area to determine whether it is home to the hairy fruited sedge, a species of concern to the state agency.
"This stuff loves the Hoosic basin," Groff said of the marsh plant. "In this location, we felt it was obvious it wasn't there. We couldn't find it."
But the state wanted confirmation from a third party, and the town contracted with a wetland consultant to do a survey of the site.
"Once that's done, it will hopefully move forward with an approval from the Endangered Species Program," Groff said. "What that will permit is it will move the approval back to this commission to give final approval to the revised plan Andre-Anne [Chenaille] presented in, I think the last week of June."
Groff indicated that if the commission can move on approval, the town will get the project out to bid and, conceivably, begin work this winter.
"If there's not deep snow, winter may not be the worst time to do it," he said of the stabilization project. "The river is at low flow, and there is partially frozen ground."
• The town is waiting for approval from a different state agency, the Division of Conservation Services, to sign off on Williamstown's Open Space and Recreation Plan, Groff told the commission.
The OSRP has conditional approval, but there is one piece missing: an Americans with Disabilities Act transition plan for town recreation amenities.
Groff said that the Berkshire Regional Planning Commission, which developed the OSRP with the town, is waiting on a grant from the Massachusetts Office on Disability to support development of the transition plan.
"Once that's added, we can add [the transition plan] as an amendment to the OSRP," Groff said. "I'm optimistic we'll get it. Those are planning grants, small sums, awarded to almost everyone. If we don't get it, I'll pivot and try to find a different source of funding to complete the document, but that's the holdup."
Stevens noted that an up-to-date and approved Open Space and Recreation Plan is needed by the town in order to qualify for other grant programs that help support the town's protection and recreational use of natural resources.
If you would like to contribute information on this article, contact us at info@iberkshires.com.
Your Comments
iBerkshires.com welcomes critical, respectful dialogue. Name-calling, personal attacks, libel, slander or foul language is not allowed. All comments are reviewed before posting and will be deleted or edited as necessary.
No Comments
Puppets Teach Resilience at Lanesborough Elementary School
By Breanna SteeleiBerkshires Staff
The kids learned from puppets Ollie and a hermit crab.
LANESBOROUGH, Mass. — Vermont Family Network's Puppets in Education visited the elementary school recently to teach kids about being resilient.
Puppets in Education has been engaging with young students with interactive puppets for 45 years.
Classes filtered through the music class Thursday to learn about how to be resilient and kind, deal with change and anxiety, and more.
"This program is this beautiful blending of other programs we have, which is our anxiety program, our bullying prevention and friendship program, but is teaching children the power of yet and how to be able to feel empowered and strong when times are challenging and tough," said program manager Sarah Vogelsang-Card.
The kids got to engage with a "bounce back" song, move around, and listen to a hermit crab deal with the change of needing a new shell.
"A crab that is too small or too big for its shell, so trying to problem solve, having a plan A, B and C, because it's a really tough time," Vogelsang-Card said. "It's like moving, it's like divorce of parents, it's changing schools. It's things that children would be going through, even on a day to day basis, that are just things they need to be resilient, that they feel strong and they feel empowered to be able to make these choices for themselves."
The resiliency program is new and formatted little differently to each of the age groups.
"For the older kids. We age it up a bit, so we talk about harassment and bullying and even setting the scene with the beach is a little bit different kind of language, something that they feel like they can buy into," she said. "For the younger kids, it's a little bit more playful, and we don't touch about harassment. We just talk about making friends and being kind. So that's where we're learning as we're growing this program, is to find the different kinds of messaging that's appropriate for each development level."
This programming affirms themes that are already being discussed in the elementary school, said school psychologist Christy Viall. She thinks this is a fun way for the children to continue learning.
"We have programs here at the school called community building, and that's really good. So they go through all of these strategies already," she said. "But having that repetition is really important, and finding it in a different way, like the puppets coming in and sharing it with them is a fun way that they can really connect to, I think, and it might, get in a little more deeply for them.
Vogelsang-Card said its another space for them to be safe and discuss what's going on in their life. Some children are afraid because maybe their parents are getting divorced, or they're being bullied, but with the puppets, they might open up and disclose what's bothering them because they feel safe, even in a larger crowd.
"When we do sexual abuse awareness that program alone, over five years, we had 87 disclosures of abuse that were followed up and reported," she said. "And children feel safe with the puppets. It makes them feel valued, heard, and we hope that in our short time that we're together, that they at least leave knowing that they're not alone."
Bedard Brothers also gave the school five new puppets to use. Viall said the puppets are a great help for the students in her classroom, especially in the younger grades.
"Every year, I've been giving the puppets to the students. And I also have a few of the puppets in my classroom, and the students use them in small groups to practice out the strategies with each other, which is really helpful," she said. "Sometimes the older students, like sixth graders, will put on a puppet show. They'll come up with a whole theme and a whole little situation, and they'll act it out with the strategies for the younger students. It's really cute, they've done it with kindergarteners, and the kids really like it."
Vogelsang-Card said there are 130 schools in Vermont that are on the waiting list for them to come in. Lanesborough Elementary has been the only Massachusetts school they have visited, thanks to Bedard Brothers.
"These programs are so critical and life-changing for children in such a short amount of time, and we are the only program in the United States that does what we do, which is create this content in this enjoyable, fun, engaging way with oftentimes difficult subjects," she said. "Vermont is our home base, but we would love to be able to bring this to more schools, and we can't do this without the support of community, business funders or donors, and it really makes a difference for children."
The fourth-grade students were the first class to engage with the puppets and a lot of them really connected with the show.
"I learned to never give-up and if you have to move houses, be nervous, but it still helps," said William Larios.
"I learned to always add the word 'yet' at the end," said Sierra Kellogg, because even if she can't do something now, she will be able to at some point.
Samuel Casucci was struck by what one of the puppets talked about. "He said some people make fun of him if he dresses different, come from different place, brings home lunch, it doesn't matter," Samuel continued. "We're all kind of the same. We're all kind of different, like we have different hairstyles, different clothes. We're all the same because we're all human."
"I learned how to be more positive about myself and like, say, I can't do this yet, it's positive and helpful," said Liam Flaherty.
The students got to take home stickers at the end of the day with contact information of the organization.
Students got to showcase their art at the Clark Art Institute depicting their relationship with the Earth in the time of climate change. click for more
The 100th annual meeting will be held on March 10, 2027, the Community Chest's birthday (there will be cake, he promised) and a gala will be held at the Clark Art Institute on Sept. 25, 2027.
click for more