

Westside Legends Plan $5.8M Condo Project in Pittsfield
PITTSFIELD, Mass.-
The Westside Legends have planned a $5.8 million condo project for first-time homebuyers in the neighborhood.
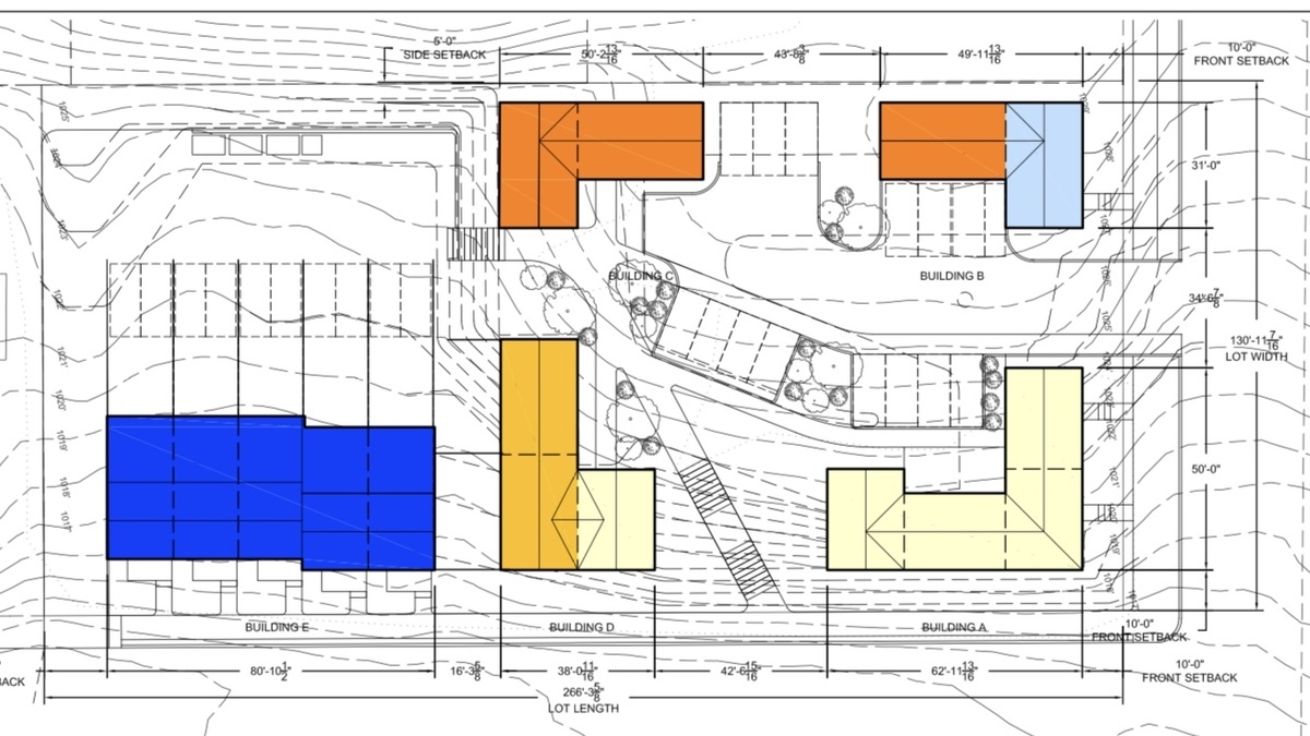
The Community Development Board on Tuesday endorsed a special permit for the construction of five new buildings on 363 Columbus Avenue. The nonprofit organization aimed to uplift the west side of Pittsfield has proposed 16 one to three-bedroom townhouses on the vacant lot at the corner of Columbus Ave. and South John St.
“We are really hoping to be able to use some masonry on this project because there are units for homeownership, not rentals,” Architect Tessa Kelly explained.
“So we are really focusing on using the best quality materials we can and making sure that every unit has its own recognizable front door and identity on the street and also green space.”
The project was allocated $175,000 of the city’s Community Preservation Act funds during the most recent cycle. The total cost of $5,822,200 includes $30,000 for site acquisition, about $1 million in soft costs, and nearly $4.8 million in construction costs. Originally requesting $350,000 in CPA funds, the ask broke down into $80,000 for soft costs and $270,000 for construction.
The market price for units has not been disclosed.
Committee members applauded the effort, Chair Sheila Irvin noting “Good luck with his project. It looks really exciting for that for the neighborhood and for the city in general.”
Matthew Herzberg recognized the challenges that are faced when creatively developing a parcel for quality community housing.
“It’s exciting to see a thoughtful project come together of this nature,” he said. “I just want to commend the Westside Legends and the entire group for bringing the project forward.”
He noted that these things take time and be complicated to put together but thinks it will have “a really positive impact in the neighborhood and help spur hopefully more economic development or a home ownership in the neighborhood.”
Driveways, landscaping, off-street parking, and site lighting will be needed for the build. Lighting must be downcast per the special permit.
After learning from Greylock Federal Credit Union that there had only been two mortgage applicants of color over the past five years,
In their CPA application, the WSL reported facilitating over 30 families of color closing on their first homes with its first-time homebuyer program, with over 40 more prequalified. This project is supported by the state and Cambridge housing authorities.
“WSL is committed to creating quality new housing in this historically redlined neighborhood that is available for purchase, not rent,” the application reads.
Two years ago, WSL completed a project on Daniels Ave., updating a cluster of outdated homes into condos for first-time homebuyers. Two of the first completed units were on the market for $159,999 and $169,999. With the principal/interest at 7 percent, taxes, insurance, and a $125 homeowner association fee, the buyer's total monthly payment would be about $1,500.
A developer has also proposed a condo project at the site of the former Polish Community Club.
Tags: condominiums, housing, Westside Legends,
