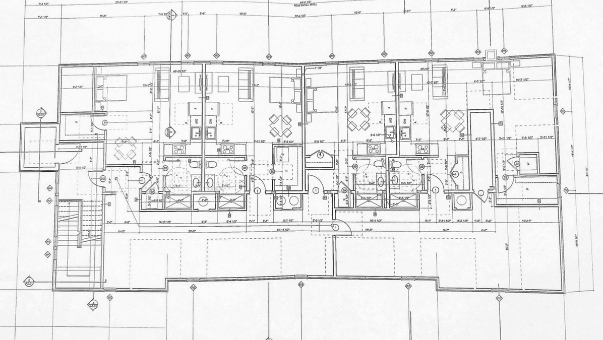
The old community center on East Street has been transformed into an apartment building. The units on the first and second floors are nearly complete, and four studio apartments will fill out the third floor. Plans provided to the town showing how the studio units will be laid out.
The former community center in East Street before its conversion.
NORTH ADAMS, Mass. — The transformation of the former community center into housing will include four more units.
The Zoning Board of Appeals on Tuesday approved an amendment to Hinton's Berkshire Homes LLC special permit to increase the number of apartments in the building from nine to 13.
Robert and Kristin Hinton explained that adding four studio apartments to the third floor of the 1920 structure would give assurance to their lenders.
The request was prompted over installation issues with the fire suppression system.
"The financing won't come through without 13 [units]," Kristin Hinton said. "Our lender will not include the cost of the water main with nine units."
The property was purchased from the town by Hinton's Berkshire Homes LLC for $25,000 in 2022. Hinton was the only bidder on the property, which had been owned by the town since 1977.
The company had planned to invest about $5 million into the property, with an estimated $1 million first phase to be completed by 2023. The $4 million second phase was to include another 27 units and a day-care center. All the apartments will be market rate.
Robert Hinton said the one- and two-bedroom units on the first two floors are nearly complete and are in the patching and painting stage. "It's been a long process but it's getting there," he said.
Kristin Hinton said there are already tenants being lined up, as they had put out feelers to gauge interest and calm lenders.
"The interest is through the roof," she said, with 60 applicants so far from around the country for units on all three floors. Many are professionals in education, culture and medicine, "good people for the community, we can only assume."
Robert Hinton said the company is trying to work out issues with the Water Department about the fire suppression system and running a water line with enough pressure.
The Hintons have been in discussion with neighbor John Cowie on the possible use of a pit, or vault, near the property; they are also considering a installing a tank using one of the other two lines coming into the property.
Cowie brought up problems with the water line, the condition of the driveway he shares with the property and the remortgage on the property but the ZBA said it had no purview on those issues.
Abuttor Craig Corrigan of Randall Street objected to the changes already made to the building to add the third-floor units. He had raised concerns over privacy issues two years ago because his home sits below the East Street land.
"We were shown drawings of the roof line ... they tore the roof off the back of the building and went up another story," he said. "They never told us there would be three stories on that building ... I feel I got lied to the first time."
The small dormers on the building have been removed and the back section raised higher to accommodate the units.
"We always intended doing the third floor but not at this point," said Robert Hinton.
Chair Glen Diehl pointed out that the ZBA and Planning Board had approved the development and its amended version to have nine units on the first and second floor.
"We approved a plan based on a three-story building," he said. "It's still a three-story building but with a different configuration."
The initial agreement with the town was to construct eight units in the existing building, a former rest home for nuns, and at least 20 units on the property in the next phase. The special permit in 2023 amended the number in the building to nine.
"It seems the additional units are what is expected," said ZBA member Raymond Gargan Jr.
The Mahogany Room was filled to capacity but only Corrigan and Cowie spoke at the meeting.
In other business, the board reorganized, keeping David Rhinemiller (who arrived late) as chair and Diehl as vice chair.
Gargan updated the board on reviewing the town's signage bylaw. He has taken on the task after the lengthy discussion over signage for Window World in April. Members noted how many variances have been issued because the town's bylaws are not in line with modern signage. Gargan said he would be meeting with Community Development Director Donna Cesan and would bring the results back to the board.
If you would like to contribute information on this article, contact us at info@iberkshires.com.
Your Comments
iBerkshires.com welcomes critical, respectful dialogue. Name-calling, personal attacks, libel, slander or foul language is not allowed. All comments are reviewed before posting and will be deleted or edited as necessary.
No Comments
Cheshire Board OKs Draft Warrant, Compensates Town Clerk
By Breanna SteeleiBerkshires Staff
CHESHIRE, Mass. — The Board of Selectmen endorsed the draft warrant for the annual town meeting and voted to transfer funds to compensate the town clerk for election work.
Following a public comment from its last meeting, board members discussed compensating Town Clerk Whitney Flynn for her hours during elections as they exceed her regular hours.
"Yes, election days are long, prior to elections there's set up. There's also state-mandated 9 to 5 hours on Fridays or Saturdays, where you have to be at the office to accept anyone who should choose to register to vote, and that's in addition to regular hours," Flynn said. "And then there's also state-mandated hours from Elections Commission for numerous days. And you know, there's multiple emails from the secretary of the commonwealth notifying that you must be in office to complete the certification of signatures during a lot of different days, just depending on how many elections are within that year. So they're mandatory hours by the state as well."
She kept track of her extra hours for the board to see. She has used other options to help pay poll workers.
"But what I would say is that there are opportunities with the [state] Division of Local Mandates to be reimbursed for a lot of those election costs," she said. "So essentially, I go through after elections, and I put in all of the vote-by-mail costs associated with that, I put in the like the poll workers hours if election workers come for early voting in office, which is mandatory for state and federal elections."
The Selectmen decided to move $2,500 from the book repair line into the elections line to cover for the extra hours but she cannot exceed that and will communicate her office hours around it.
The board voted to recommend the 31 warrant articles for the annual town meeting scheduled Monday, June 8.
Among the questions to be posed to voters is the operating budget, Article 8, to raise and appropriate $1,642,481 and Article 9, to approve the Hoosac Valley Regional School District's assessment of $3,402,982, an increase of $196,900, or about 6 percent. The budget was approved the School Committee in March.
Article 10 is to approve the Northern Berkshire Vocational Regional School assessment of $595,431 and Article 23 asks to use free cash of $14,137 for the town's portion of McCann Technical School's roof and window project.
Article 12 is towould appropriate $403,000 to the Police Department. This includes an increased police chief salary to help attract a potential candidate as well as three full-time officers.
Article 13 would appropriate $131,805 to support the Fire Department and Article 14 is to transfer $18,726 from the radio stabilization account for emergency radio communications.
Voters will also be asked to raise and appropriate $20,000 to the reserve fund and $42,488 for the building department.
Article 28, the room occupancy excise tax, would be capped at 6 percent as that is what most communities do.
Department of Public Works Director Corey McGrath informed the board in April that the fire station needs to have a geotechnical study done because of the chance of a subsurface issue.
The total cost for the ramp and installation was approximately $6,200, all of which was funded through a collaborative effort of donations and grants. click for more
Mount Greylock Regional School seventh-grader Scarlett Foley Sunday beat two opponents from Division 2 Longmeadow to capture the Western Mass Tennis Individuals Championship. click for more
Voters will head to the polls Tuesday to choose the district's leadership and decide whether the clerk/treasurer position should shift from an elected role to an appointed one. click for more
As the Fire District continues to navigate the state's mandatory retirement age for firefighters, one thing is clear: legislative action is needed.
click for more