

Taconic High School Educational Program
![]() |
| Taconic High School Today Built in 1969, the aging building suffers from a number of issues. |
![]() |
| MSBA Process The Massachusetts School Building Authority has a delineated process for research, funding and construction of public schools. Once a locally... |
![]() |
| Design Working with the MSBA, the project is based on serving 920 students. That accounts for the 750 or so currently attending the school, moving some... |
![]() |
| Auditorium The design features a gymnasium and auditorium that will be smaller than the current ones. The current gym is much bigger than the state's... |
![]() |
| Site Plan The front of the proposed new school is oriented south, opposite the current school, which will allow it to be built while students are still attending... |
![]() |
| First Floor Shops and common areas would be located on the ground floor. A subcommittee was formed to inventory the current equipment and furniture and as much of... |
![]() |
| Second Floor The clustering feature, which the School Building Needs Commission added back into the plan, is designed to create "academies." The... |
![]() |
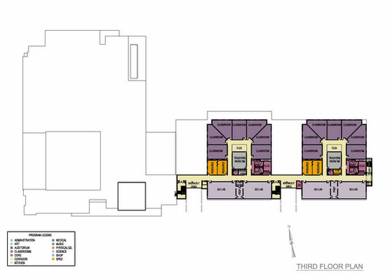
| Third Floor The third floor space will mirror the second floor in clustering classrooms. Not all students will be enrolled in vocational programs and others... |
![]() |
| Front & Back The building would be built around security protocols, eliminating the multiple areas of egress and funneling visitors through the main... |
![]() |
| Academics The project is built around an educational plan the School Committee approved early in the project. McCandless said the idea is to... |
![]() |
| Future Expansion The city was very clear a few years ago that we want two high schools. Superintendent Jason McCandless Should... |













